Edificio residenziale bifamiliare in Muratura Armata con blocchi POROTON® P800 MA
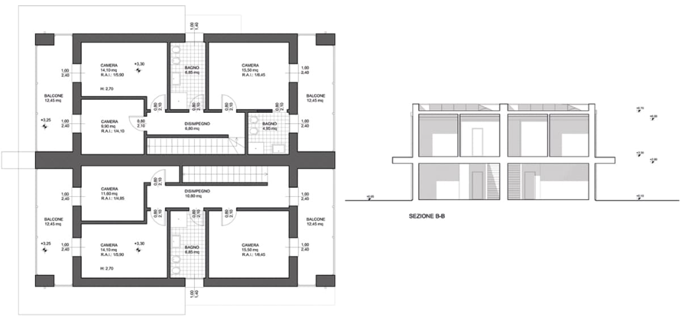
L’intervento nasce dalla demolizione di un edificio rurale esistente e dalla successiva ricostruzione di una residenza bifamiliare articolata su due piani fuori terra. Il nuovo edificio assume una forma parallelepipeda, definita da una scansione modulare delle aperture e da un equilibrato rapporto tra superfici piene e vuote.
Le facciate si caratterizzano per un linguaggio essenziale e rigoroso, organizzato secondo un modulo di 1,00 m. L’unico elemento di variazione compositiva è rappresentato dai balconi collocati al primo piano, in corrispondenza delle zone notte delle due unità abitative.
Il sistema costruttivo prevede una muratura portante armata in blocchi POROTON® P800 MA, abbinata a un isolamento a cappotto esterno in EPS. I solai interpiano sono realizzati in laterocemento, mentre il solaio della copertura piana è in acciaio.
Il progetto è stato sviluppato con particolare attenzione alle prestazioni energetiche dell’edificio, che raggiunge la classe A4 secondo la classificazione CENED. I serramenti a bassa emissività, dotati di tapparelle in alluminio coibentato, contribuiscono alla riduzione delle dispersioni termiche; sulla copertura sono inoltre installati pannelli fotovoltaici per la produzione di energia elettrica.






