Casa L: nuova costruzione con muratura armata MA
Nuova costruzione con Muratura Armata in blocchi POROTON® P800 MA e blocchi con isolante integrato NORMABLOK® PIÙ taglio termico.
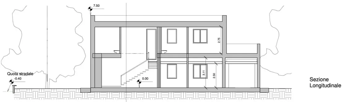
L’edificio residenziale, articolato su due piani fuori terra, si inserisce in un ambito caratterizzato da edifici di recente realizzazione o in fase di completamento, all’interno di un’area di espansione urbana.
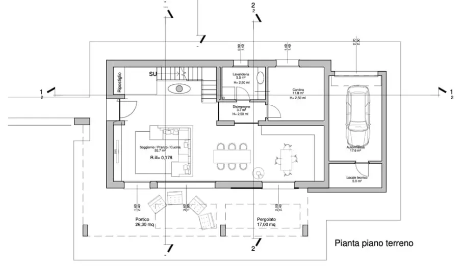
L’organizzazione funzionale prevede al piano terra la zona giorno e i locali accessori, tra cui cantina, lavanderia e autorimessa, mentre il piano superiore è interamente destinato alla zona notte.
Per il controllo dell’irraggiamento solare estivo sono stati adottati sistemi di schermatura passiva, quali oscuranti esterni in alluminio, portici e pergolati, a protezione del fronte sud dell’edificio.
Il fabbricato monofamiliare presenta fondazioni in calcestruzzo armato formato in opera; le strutture fuori terra sono realizzate in muratura di laterizio armata in blocchi POROTON® P800 MA, completata da un sistema di isolamento a cappotto che riveste integralmente l’involucro edilizio. L’impiantistica prevede un sistema di riscaldamento e raffrescamento a pompa di calore, integrato da un impianto fotovoltaico in copertura dedicato alla produzione di energia elettrica.






